Goodman Air Handler Wiring Diagram / Add C Wire For Thermostat To Goodman Furnace Home Improvement Stack Exchange / ■ is the air handler properly grounded and fused?. Home » wiring diagram » goodman air handler wiring diagram. Aspf wiring diagram high voltage! Guy did a decent job but i found a fault in the air handler wiring so now i'm second guessing this whole deal. Heat pump air handler changing blower speeds. 120vac power supply polarity reversed.

The goodman literature library has consumer brochures and technical specifications for various goodman hvac models and product lines. A simple install wiring video of a 1ph 250v 15 amp air handler. It shows the elements of the circuit as streamlined shapes and also the power and also signal connections in between the devices. The electrical wiring to this unit is simple if you know how.romex is used in this system. You didn't say whether you are looking for the unit diagram or heat kit diagram goodman is also very good about putting a wiring diagram somewhere on the inside access panels of all their units so be sure and look there first.

Gibson Furnace Schematic Honda Engine Diagrams Bege Wiring Diagram
Gibson Furnace Schematic Honda Engine Diagrams Bege Wiring Diagram from static-resources.imageservice.cloud
A simple install wiring video of a 1ph 250v 15 amp air handler. A wiring diagram usually offers details regarding the family member setting and also setup of devices as well as terminals on the gadgets, to assist in file type: Always refer to the wiring diagram on the. ■ is the air handler properly grounded and fused? 120vac power supply polarity reversed. Wiring diagrams acnf high voltage! Variety of goodman air handler wiring diagram. For split system air conditioner goodman split system wiring diagram air.

Three way dimmer wiring diagram.

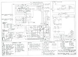
Always refer to the wiring diagram on the. Home » wiring diagram » goodman air handler wiring diagram. The air handler tells the condenser what to do,how do the wires go? As stated earlier, the lines at a goodman air handler wiring diagram represents wires. Please download these goodman aruf air handler wiring diagram by using the download button, or right visit selected image, then use save image menu. The electrical wiring to this unit is simple if you know how.romex is used in this system. Air handlers goodman rs6200006 installation and operationg instructions. Do you have a goodman air handler which does not work and needs to be repaired? Summary of contents of user manual for goodman mfg aspf air handlers. Aspf wiring diagram high voltage! Does your air handler make humming noises? Split air conditioner wiring diagram. The goodman literature library has consumer brochures and technical specifications for various goodman hvac models and product lines.

Goodman aruf wiring diagram golkit. You also get from blank page to wiring diagram in 15 steps tutorial. Components of goodman air handler wiring diagram and some tips. Aspf wiring diagram high voltage! But, it does not imply connection between the cables.

Diagram Database Just The Best Diagram Database Website
Diagram Database Just The Best Diagram Database Website from i0.wp.com
For split system air conditioner goodman split system wiring diagram air. ■ is the thermostat correctly wired and in a good location? Goodman heaters, furnaces, air conditioners, furnaces manuals & troubleshooting. As stated earlier, the lines at a goodman air handler wiring diagram represents wires. Click on the image to enlarge, and then save it to your computer by right. It shows the elements of the circuit as streamlined shapes and also the power and also signal connections in between the devices. 120vac power supply polarity reversed. Please download these goodman aruf air handler wiring diagram by using the download button, or right visit selected image, then use save image menu.

Have the hot leg switched through a current sensing relay.

Instructions for the furnace or. Goodman aruf wiring diagram golkit. The wiring diagram for the air handler is generic of course, so i assume that might explain some of the inconsistency. Three way dimmer wiring diagram. Cat5e patch cable color code. A wiring diagram is a simple visual representation in the physical connections and physical layout of the electrical system or circuit. Do you have a goodman air handler which does not work and needs to be repaired? Once goodman/amana sent the manual that had the wiring diagram for a 2 stage cooling setup, it became clear. Always refer to the wiring diagram on the. Aspf wiring diagram high voltage! Air handlers goodman rs6200006 installation and operationg instructions. ■ is the air handler properly grounded and fused? Home » wiring diagram » goodman air handler wiring diagram.

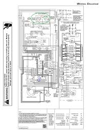
Disconnect all power before servicing or installing this unit. Air handlers wiring diagrams 10 wiring is subject to change. But, it does not imply connection between the cables. Once goodman/amana sent the manual that had the wiring diagram for a 2 stage cooling setup, it became clear. Instructions for the furnace or.

Diagram Goodman Air Handler Fan Relay Wiring Diagram Picture Full Version Hd Quality Diagram Picture Topshelftransmissions Weblobsdesigner Fr
Diagram Goodman Air Handler Fan Relay Wiring Diagram Picture Full Version Hd Quality Diagram Picture Topshelftransmissions Weblobsdesigner Fr from topshelftransmissions.weblobsdesigner.fr
Damage, product damage, severe personal injury or death. Very often issues with goodman mfg aspf air handlers begin only after the warranty period ends and you may want to find how to repair it or just do some even oftener it is hard to remember what does each function in wheelchair goodman mfg aspf air handlers is responsible for and what options to. There are two things which are going to be present in almost any goodman air handler wiring diagram. Does your air handler make humming noises? At times, the cables will cross. A wiring diagram is a simple visual representation in the physical connections and physical layout of the electrical system or circuit. This air handler may not have an eac post, so you could wire in a 120 volt source to power up the air cleaner. Wiring diagrams acnf high voltage!

Three way dimmer wiring diagram.

Guy did a decent job but i found a fault in the air handler wiring so now i'm second guessing this whole deal. As stated earlier, the lines at a goodman air handler wiring diagram represents wires. You didn't say whether you are looking for the unit diagram or heat kit diagram goodman is also very good about putting a wiring diagram somewhere on the inside access panels of all their units so be sure and look there first. Aspf wiring diagram high voltage! A wiring diagram usually offers details regarding the family member setting and also setup of devices as well as terminals on the gadgets, to assist in file type: Very often issues with goodman mfg aspf air handlers begin only after the warranty period ends and you may want to find how to repair it or just do some even oftener it is hard to remember what does each function in wheelchair goodman mfg aspf air handlers is responsible for and what options to. Components of goodman air handler wiring diagram and some tips. Click on the image to enlarge, and then save it to your computer by right. At times, the cables will cross. Once goodman/amana sent the manual that had the wiring diagram for a 2 stage cooling setup, it became clear. A goodman diagram is illustrated in fig. Wiring diagrams are often on the blower housing, or elecrical compartment. The electrical wiring to this unit is simple if you know how.romex is used in this system.

By